[세컨 하우스 프로젝트] 4. 설계와 시공사 선정
집을 짓기로 결정하니 당장 설계라는 엄청난 숙제를 떠안게 됐죠.
"설계는 설계하는 사람이 해주는 것 아니야?" 라고 생각하면 큰 오산.
사실 내가 살고 싶은 집은 나 외에는 아무도 알 수 없습니다.
그리고 고객과의 인터뷰와 꼼꼼한 의사소통을 통해 제대로 설계를 해주는 경우에는 당연하게도 설계비가 훅 올라가죠.
자칫하면 짓기 편한? 혹은 설계하기 편한 집으로 끌려가기 십상이기도 하고-
다행히 지인을 통해 괜찮은 느낌이 건축사를 소개받았지만,
진행하다보니 철근콘크리트 구조의 집을 짓기에는 예산이 도저히 무리.
얄궂은 글로벌 경제 상황으로 인해 철콘집은 너무 허접하지 않게 지으려면 평당 천만원이 넘는 건축비가 들어가는 시대가 되어버렸더라고요.
특히나 35~40평 정도의 적당한 규모의 집을 지을 때는 더더욱 평단가가 올라가버린다는-
문제는 소개받은 건축사가 철콘 전문가인데다, 평당 천만원에라도 진행하려면 조금 규모가 있는 시공사(이런 시공사는 평당 1200부터 시작하더군요 ㅠ.ㅠ)는 어렵고 작은 업체를 통할 수밖에 없었습니다.
어쩔 수 없이 목조주택(이건 허접하지 않는 집을 짓는데 대략 평당 700~800 정도가 들어가더군요 ㅠ.ㅠ)으로 진행하기로 하고 제가 원하는 집의 형태도 제 손으로 그리기로 마음먹었죠.
첫번째 선택의 기로는 단층이냐 2층이냐?
계단을 오르내리는 불편함을 너무나도 잘 알고 있는 탓에 짓게되면 무조건 단층이라고 생각하고 있었는데,
막상 허물어야하는 현재의 집 2층에 올라가 창밖을 내다보니 2층에서 보는 뷰를 포기하기는 너무 아깝더군요.
고민 끝에 대부분의 공간은 1층에 두고, 2층에는 서재 하나만 두기로 결정.
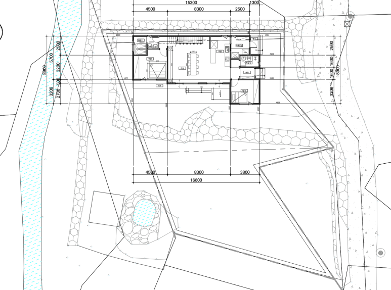
두번째 선택의 기로는 현재 땅의 모습을 그대로 두고 진행할 것인가? 원하는 모양으로 토목을 해서 앉힐 것인가 하는 문제.
정원은 돈을 때려붓을 게 아니라면 세월이 만들어주는게 반 이상이란 생각을 갖고 있는 터라-
20년 정도의 시간이 만들어낸 현재의 정원을 가능한 그대로 살리기로 결정.
그러다보니 집이 앉을 수 있는 터 모양에 심한 제약이 빡!
세번째 원칙은 가능한 집의 모든 공간에 남향 창을 두고, 북향으로는 창을 내지 않는다는 거였습니다.
그 동안 살아온 경험으로 남향으로 창이 있는 공간과 그렇지 않은 공간의 차이를 너무나 잘 알기 때문에-
그런 저런 원칙과 제약 사항을 고려해서 밤잠을 설쳐가며 만들어낸 공간은 대략 이렇습니다.
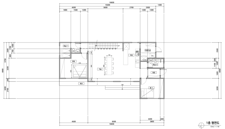
가능한 꺽인 곳이 없고 단순한 구조를 원했죠.
그리고 계단이 집 면적을 갉아 먹는 걸 최소화하려고 노력-

이런 평면을 시공사 설계팀에 전달한 결과 이런 평면으로 살짝 변경.

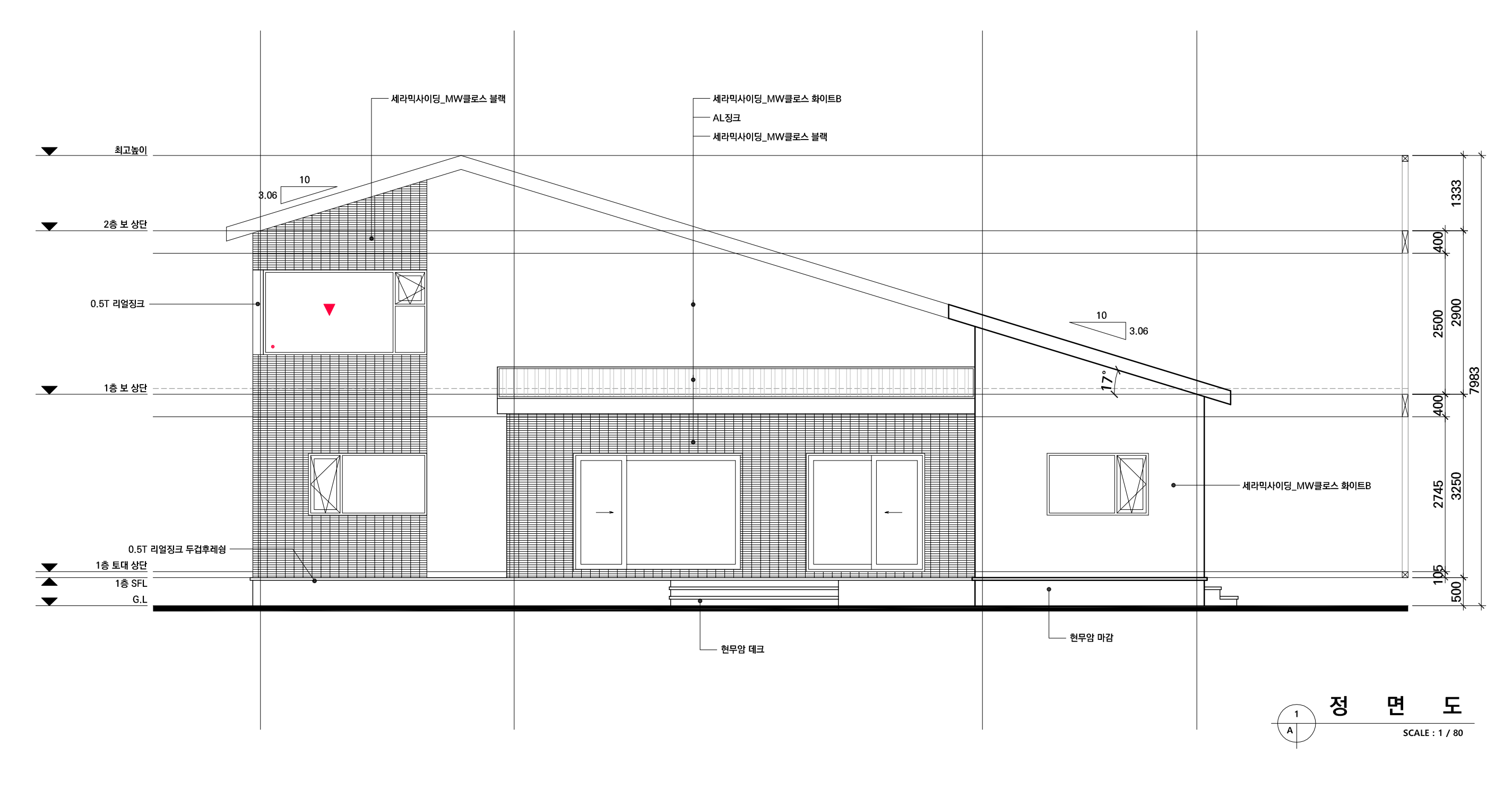
그리고 입면은 이렇게 보낸 결과

요렇게 나왔습니다.

정말 고통스런 한달 정도의 짜내기 결과 이렇게 설계된 집을 210평 정도 되는 땅에 요렇게 앉히기로 결정됐습니다. ^^

이제 마구 집을 지으면 될 것 같았는데-
그건 완전히 오산.
이제 겨우 의사결정의 걸음마를 뗀 것 뿐이었습니다.
자잘한 설계 변경과 내장/외장재의 선택이라는 엄청난 정신노동이 남았더라는-
거기에 더해 무슨 놈의 행정절차가 이렇게 많고도 복잡한지...